Газовый камин Faber Matrix 800/500 III
Современный газовый камин Faber Matrix 800/500 III с прекрасным трехсторонним видом огня. Поскольку камин оснащен треххсторонним стеклом, у вас есть несколько позиций с потрясающим видом на красивое пламя.
Закрытая система горения.
В камине реализована закрытая технология горения пламени. Характеризуется она полной герметичностью топочной камеры, за счет чего воздух в помещении не используется для поддержания пламени в очаге. Воздух же, насыщенный кислородом подается по дымоходу, подключаемому к камину. Он имеет двухконтурную конструкцию, и именно по внешнему контуру открывается доступ для свежего воздуха. По внутреннему контуру отводятся отработанные газы.

Такая система горения имеет следующие преимущества:
- Отвод отработанных газов осуществляется сразу же на улицу. Поэтому в комнату не проникают посторонние неприятные запахи. Это позволяет без лишней оглядки использовать в качестве топлива пропан и природный газ.
- Не происходит нарушение воздухообмена в помещении. Поэтому вам не придется в процессе монтажа камина заниматься переоборудованием системы вентиляции.
- Обеспечивается максимально бесшумная работа камина. Ведь тяга в такой топке осуществляется естественным образом, и необходимость в дополнительном вентиляторе отсутствует.
Если в процессе монтажа дымохода были соблюдены все правила, то протяженность его может достигать нескольких десятков метров. Это значительно расширяет возможности в плане выбора места для установки и вывода патрубка дымохода. Последний может быть выведен как на стену, так и на крышу с любым углом ската.
Декоративное оформление.
Устанавливается камин на широкие ножки, которые придают основательный вид всей конструкции. Стальная задняя стенка придает современный вид конструкции. Внутренняя часть топки оформлена объемной горелкой, выполненной по технологии Log Burner. В этом случае имитация дров выложена таким образом, чтобы добиться максимального сходства с небольшим костром. Пламя в этом случае сконцентрировано в средней части горелки.

При изготовлении наполнения камина используются материалы, в составе которых отсутствую горючие волокна. Это способствует отсутствию во время работы копоти и гари, которые оседают на поверхностях топки. Это делает камин более практичным вариантом, по сравнению с дровяными каминами.
Обогрев помещения.
Огонь в топке излучает тепло, от которого поверхность топки прогревается. Естественно, мощность теплоотдачи ниже, чем при сгорании твердого топлива, но все же ее достаточно для создания комфортных условий в небольшом помещении. В большом по площади помещении он используется больше для декоративного оформления. Но в каминной зоне вам находиться будет точно комфортно.
Система управления.
Пульт дистанционного управления, электронный воспламенитель.
- Производитель faber
- Газ-контроль Есть
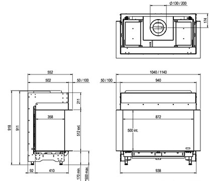
- Диаметр дымохода, (мм) 200
- Материал корпуса: Сталь
- Материал топки: Нержавеющая сталь
- Тип камина: Угловой
- Цвет: Чёрный
- Стиль: Модерн
- Защита от опрокидывания: Да
- Обогреватель: Да
- Тип управления: Автоматический
- Гарантия, (лет): 2
- Стекло: В комплекте
- Пульт ДУ: С пультом
- Защита от перегрева: Да
- Ширина, (мм): 1290
- Глубина, (мм): 635
- Высота, (мм): 1087
- Габаритные размеры ШxГxВ, (мм): 1290x635x1087
- Мощность (кВт): 10.2
- Модель: Matrix 800/500 III
- Мощность обогрева (кВт/ч) 7.1
- Эффект пламени Дрова
Стоит ли покупать биокамин Газовый камин Faber Matrix 800/500 III
доставка осуществляется за наш счёт.
Мы сотрудничаем с транспортными компаниями:








Доставка по Кострома
При заказе от 50 000 рублей и предоплате 100% доставка осуществляется бесплатно
Срок доставки 1-3 дня
Самовывоз по Кострому
Самовывоз осуществляется по адресу:
г. Кострома, пр. Мира, 116
Перед приездом просим Вас заранее нам позвонить по телефону +7-800-100-10-78, что бы мы успели подготовить Ваш заказ.
После выбора товара нажмите кнопку «В корзину» – товар добавится в вашу корзину.
Далее, если вы закончили выбирать товар, нажмите кнопку «Ваша корзина».
На странице «Ваша корзина» будут перечислены все выбранные вами товары.
В поле «Количество» вы можете изменить количество товара для покупки. После изменения количества товара необходимо
нажать кнопку «Пересчитать» для пересчета итоговой суммы заказа.
В колонке «Действия» над каждым товаром можно произвести следующие действия: либо удалить товар из корзины, либо
товар на будущее.
Также можно ввести код скидки в соответствующее поле.
После ввода необходимой информации о доставке товара (ФИО получателя, адрес доставки, контактные данные, вариант
доставки, способ оплаты и т.д.) для оформления заказа вам нужно нажать кнопку «Оформить заказ».
Копия заказа будет выслана на ваш e-mail, указанный при оформлении заказа.
Внимание! Неправильно указанный номер телефона, неточный или неполный адрес могут привести к дополнительной
задержке! Пожалуйста, внимательно проверяйте ваши персональные данные при регистрации и оформлении заказа.
Через некоторое время (обычно в течение часа) после оформления покупки, с вами свяжется наш менеджер по контактным
данным, указанным при оформлении заказа. С менеджером можно будет согласовать точное время и сроки доставки, а также
уточнить детали.
Примечание: Для постоянных клиентов на сайте магазина предусмотрена возможность регистрации. В своем кабинете вы
можете просмотреть содержимое корзины, историю своих заказов, а также повторить или отказаться от заказа, подписаться на
рассылку новостей магазина.
Цены, указанные на сайте, являются окончательными и не требуют доплат при стандартных условиях поставки. Все налоги
включены в стоимость товара.
Внимание! Для каждого отдельного заказа возможен только один способ оплаты на ваш выбор. Оплата заказа по частям
различными способами невозможна.
Возможные способы оплаты
Наличный расчет
Оплата производится наличными курьеру или в магазине при самовывозе. Вместе с товаром передается товарный и кассовый чеки, а также гарантийный талон
Безналичный расчет
Оплата производится наличными курьеру или в магазине при самовывозе. Вместе с товаром передается товарный и кассовый чеки, а также гарантийный талон
Индивидуальное проектирование
и изготовление
на собственном производстве
из металла, стекла, камня
Подробнее Почему нам доверяют
Мы можем гарантировать высокое качество наших биокаминов, поскольку самостоятельно производим все модели и тщательно контролируем каждый этап. Наши камины - безопасны и надежны, они станут отличным дополнением любой комнаты благодаря привлекательному внешнему виду и создадут неповторимую атмосферу уюта.
Создадим для Вас собственный, уникальный проект, который будет в единичном экземпляре и по своему уникальный! Мы всегда учитываем пожелания наших клиентов и трепетно относимся к каждой мелочи в заказе!
Осуществляется транспортными компаниями по вашему адресу "до двери" на основании данных о весе, объеме и расстоянии до Вашего города по расценкам перевозчика. При сумме заказа больше 50 000 рублей и 100% предоплате, доставка осуществляется бесплатно.
Мы всегда за то, чтобы к моменту оформления заказа Вы были уверены в том, что наш продукт подходит Вам на 100%! Поэтому, всегда готовы бесплатно предоставить услуги замерщика!
Помощь дизайнеров с многолетним опытом работы сделает ваш камин не только функциональным и безопасным, но и уникальным! Он красиво встроиться в интерьер и будет радовать вас и ваших близких долгие годы!
Возможен любой способ оплаты (наличными, безналично, картой). Возможно оформление рассрочки и кредита on-line.
Все порталы и топливные блоки изготовлены из высококачественных металлов на современном оборудовании с вниманием к деталям, что позволяет нам давать гарантию на корпус камина 10 лет.
Вопросы и ответы
<ul> <li>Горелки. Сжиженный газ сгорает в горелке, продукты распада, раскаляясь до высоких температур, обтекают радиатор, разогревая камин. Принцип работы схож с обычным кухонным духовым шкафом.</li> <li>Камины с беспламенной системой нагрева.В центре камина установлена инфракрасная горелка, которая отвечает за нагрев агрегата.</li> <li>Камины с катализаторными горелками. Смешиваясь с кислородом, газ из баллона не воспламеняется, а поддается процессу окисления на сетке катализатора, выделяя тепло низких температур. Самым безопасным газовым камином на баллонном газе считается тот, который работает на катализаторной горелке, поскольку температура в теплообменнике не превышает 240 ºС.</li> </ul>
При мощности оборудования для отопления жилья более 3 кВт/ч, необходимо сделать дымоотвод из стали или чугуна. Внешнюю часть дымохода требуется прикрыть минватой и закрыть специальным чехлом. Встраиваемые газовые камины с небольшой мощностью, приспособлены удалять продукты горения при помощи вентиляции. Для безопасности, в помещении, где установлен камин, в обязательном порядке должны быть датчики неполного сгорания пропана и сигнализационная система. У газовых каминов для дачи без дымохода, камера сгорания – закрытого типа. Такие камины работают по принципу задействования электроэнергии для корректной работы автоматической системы и вентилятора.
Чтобы обогреть 10 м2 необходимо затратить 1 кВт/с тепла. Таким образом, для двухкомнатного дома, каждая из которых имеет площадь 20 м2, необходимо приобрести газовый камин на 4 кВт. Расход баллонного газа в таких условиях будет составлять 0,75 л/ч. Таким образом, за выходные дни, грубо говоря, вы потратите 36 л пропана, что не так уж и много.
В газовых каминах используется Баллонный газ или Магистральный газ. Этот момент нужно учитывать при покупке, поскольку камины работающие, к примеру, на баллонном газе, не предназначены для работы с магистральным, и наоборот. Маркировкой N обозначают модели газовых каминов, работающих на природном газе. Маркировка P означает, что оборудование приспособлено для пропан-бутана.
1. Встраиваемые газовые камины. Для установки используют созданный собственноручно или готовый портал. Он изготавливается из огнеупорных материалов. 2. Уличный газовый камин – устанавливают на открытом воздухе в беседках, верандах. Монтаж дымоотвода не требуется. 3. Напольные газовый камин устанавливают на подготовленной подставке и подключают к дымоотводу. 4. Настенные крепят при помощи кронштейнов. Отличный вариант для тех, у кого есть маленькие дети или животные.
Азаров Алексей
Почему нам доверяют
Мы можем гарантировать высокое качество наших биокаминов, поскольку самостоятельно производим все модели и тщательно контролируем каждый этап. Наши камины - безопасны и надежны, они станут отличным дополнением любой комнаты благодаря привлекательному внешнему виду и создадут неповторимую атмосферу уюта.
Создадим для Вас собственный, уникальный проект, который будет в единичном экземпляре и по своему уникальный! Мы всегда учитываем пожелания наших клиентов и трепетно относимся к каждой мелочи в заказе!
Осуществляется транспортными компаниями по вашему адресу "до двери" на основании данных о весе, объеме и расстоянии до Вашего города по расценкам перевозчика. При сумме заказа больше 50 000 рублей и 100% предоплате, доставка осуществляется бесплатно.
Мы всегда за то, чтобы к моменту оформления заказа Вы были уверены в том, что наш продукт подходит Вам на 100%! Поэтому, всегда готовы бесплатно предоставить услуги замерщика!
Помощь дизайнеров с многолетним опытом работы сделает ваш камин не только функциональным и безопасным, но и уникальным! Он красиво встроиться в интерьер и будет радовать вас и ваших близких долгие годы!
Возможен любой способ оплаты (наличными, безналично, картой). Возможно оформление рассрочки и кредита on-line.
Все порталы и топливные блоки изготовлены из высококачественных металлов на современном оборудовании с вниманием к деталям, что позволяет нам давать гарантию на корпус камина 10 лет.
Индивидуальное проектирование
и изготовление
на собственном производстве
из металла, стекла, камня
Подробнее Товар представлен
в категориях
Эта модель представлена в разделах
Ранее вы смотрели
Габариты ШxГxВ (мм)
950x200x600
Линия огня, (мм):
400
Для всех регионов РФ

Скачать чертеж

